Бизнес-центр «Орбион»

  • Москва, Одинцовский городской округ, ул Западная, 180

Мы предлагаем

Аренда и продажа офисных помещений в 21-этажном Бизнес-центре «Орбион» по адресу Москва, 19-й км Минское ш., д. 180 от собственника без комиссии

Звоните: +7 (495) 822-30-70

  • Метро

    Сколково

  • Район

    Можайский (Московская область)

  • Округ

    Западный (ЗАО)

  • Деловая зона

    За МКАД

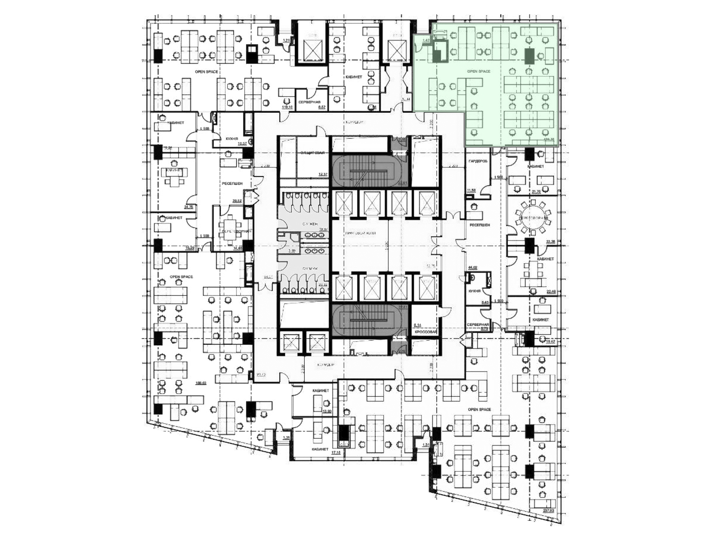
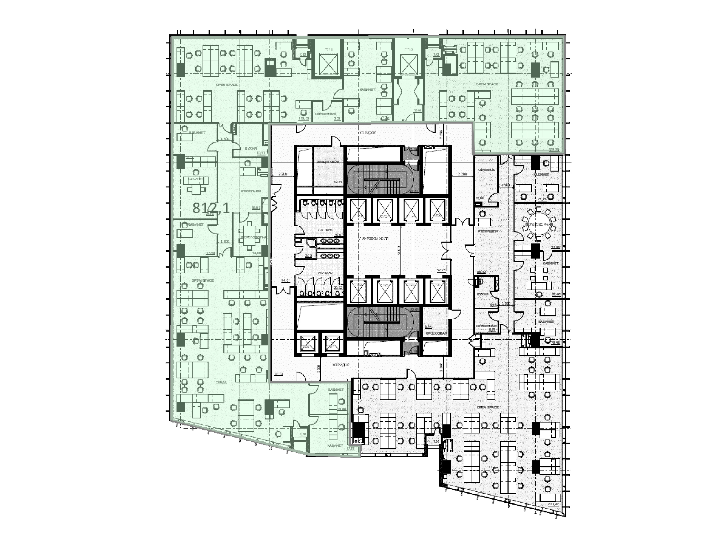
Свободные площади, аренда

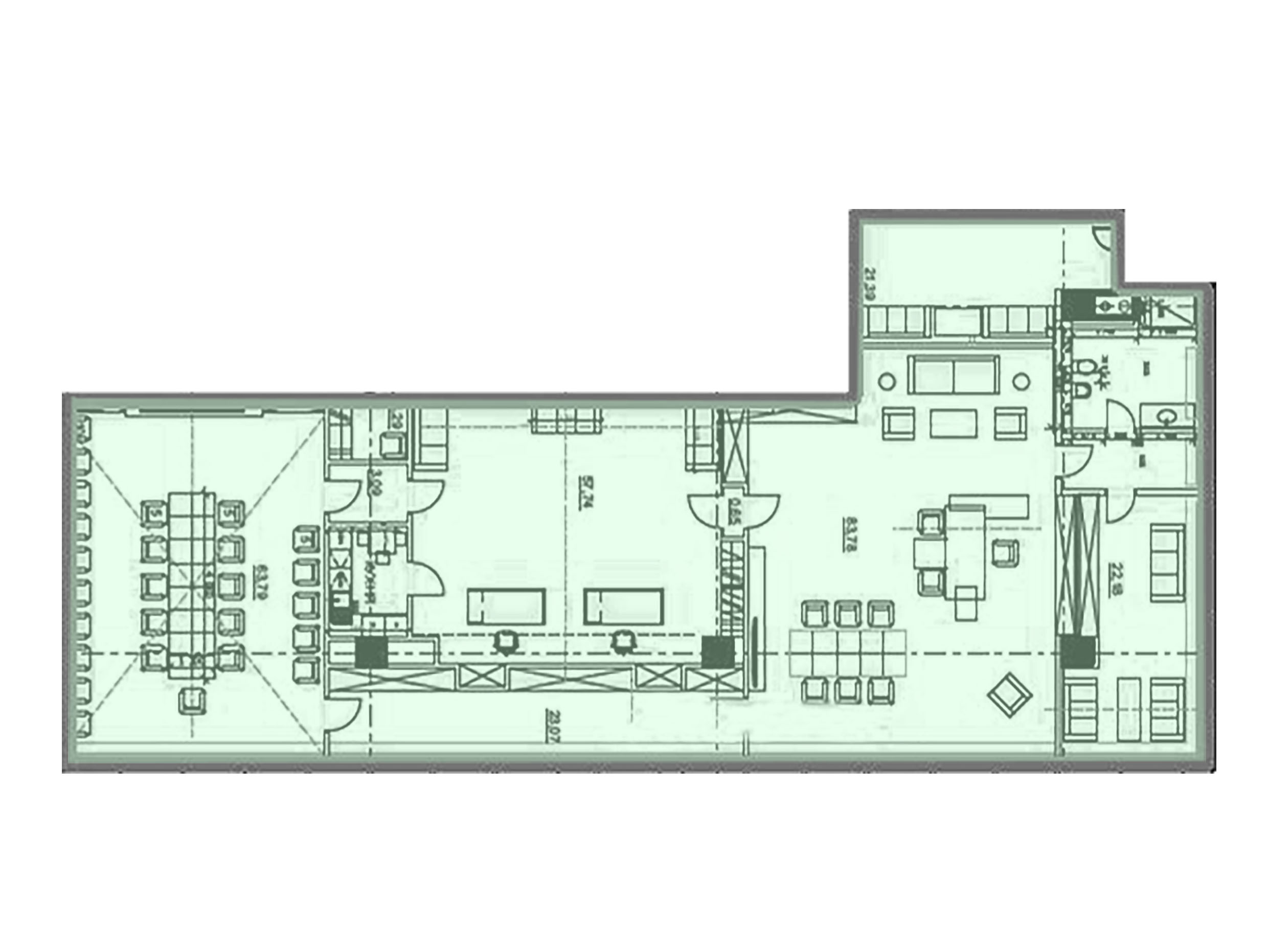
    • Площадь

      225.8 м2

    • Этаж

      6 из 21

    • Ставка в год

      47 999.6 ₽/м2

      вкл. OPEX, НДС

      Включено: OPEX, НДС

      Оплачивается отдельно: Интернет, Коммунальные услуги, Телефония, Уборка, Электроэнергия

    • Стоимость в месяц

      903 194 ₽

    • Свободно

Актуальная информация обо всех вакантных площадях предоставляется по запросу

Характеристики

  • Офисная площадь, кв.м

    26 437

  • Арендопригодная площадь, кв.м

    38 145

  • Общая площадь, кв.м

    65 128

  • Статус

    Построен

  • Код налоговой

    31

  • Год постройки

    2019

  • Этажность

    21

  • Размер типового этажа

    1 330

  • Напольное покрытие

    Ковролин

  • Кондиционирование

    Центральное

  • Вентиляция

    Приточно-вытяжная

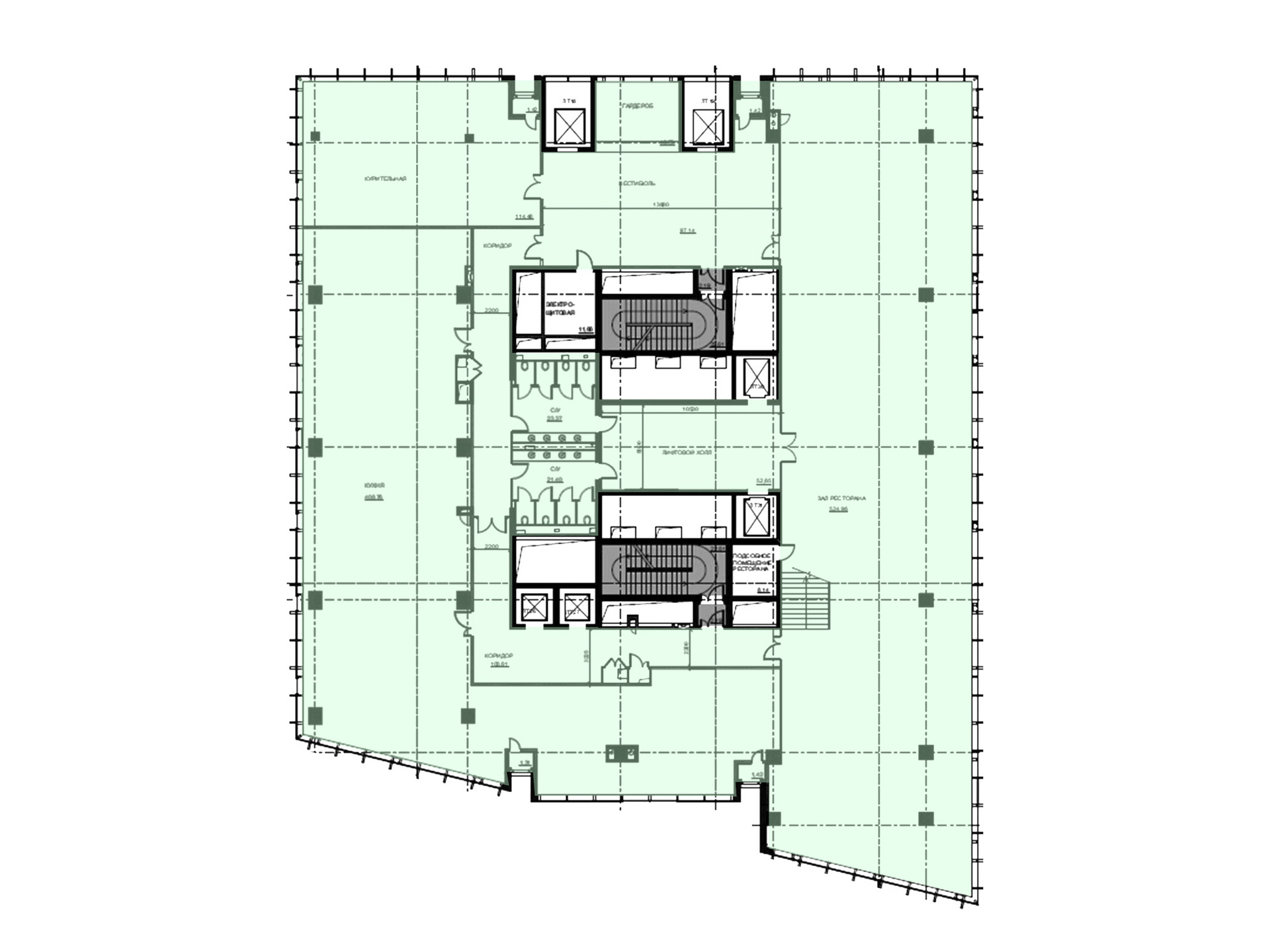
  • Инфраструктура

    Кафе, Магазины, Ресторан, Столовая

  • Высота потолков

    3 м

  • Лифт

    есть

  • Планировка

    Open space, Кабинеты

  • Паркинг подземный, м/мест

    67

  • Паркинг наземный открытый, м/мест

    253

  • Провайдеры

    МастерТел, Мегафон, МТС, Наука-Связь, Ростелеком, Тайм Лайн

  • Шаг колонн

    9×9

Фотогалерея

Об объекте

Бизнес-центр класса A расположен в Одинцово, на 19-м км Минского шоссе. Если возможен корпоративный подвоз сотрудников к месту работы, или все специалисты компании имеют личный автотранспорт, то это отличный вариант для минимизации расходов на аренду офисных помещений.

Здание 2019 г. постройки имеет современные инженерные коммуникации. Есть системы приточно-вытяжной вентиляции и центрального кондиционирования, что гарантирует создание комфортного микроклимата в офисах и местах общего доступа. Подведены все необходимые телекоммуникации для бесперебойной телефонии и скоростного доступа в Интернет. В основном планировка офисов смешанная.

Для арендаторов и их клиентов доступны машино-места на наземном и подземном паркингах. В бизнес-центре организована круглосуточная охрана, контроль доступа и видеонаблюдение, установлены системы пожарной безопасности.

Организация просмотра свободных офисных помещений возможна в любое удобное для вас время. Арендная ставка включает НДС, ОРЕХ. Отсутствуют проценты и комиссии за услуги посредников, поскольку договор заключается напрямую с владельцем коммерческой недвижимости. Оставить заявку и проконсультироваться можно по телефону или через форму на сайте.

Адрес

Москва, Одинцовский городской округ, ул Западная, 180